3 Bedroom Detached For Sale
Bishopton Lane, Stratford upon Avon, CV37 9JN
Offers Over £695,000
  • Detached Dormer Bungalow
  • 3 Bedrooms
  • 2 Bathrooms
  • Large Rear Garden
  • Generous "In and Out" Driveway
  • Garage + Home Gym
  • Air-Conditioning
  • Potential for Redevelopment

Summary

Set on an excellent, generous plot, this three-bedroom dormer bungalow offers superb flexibility - ready to move straight into and enjoy, yet also presenting exciting potential for redevelopment, subject to the necessary planning consents.

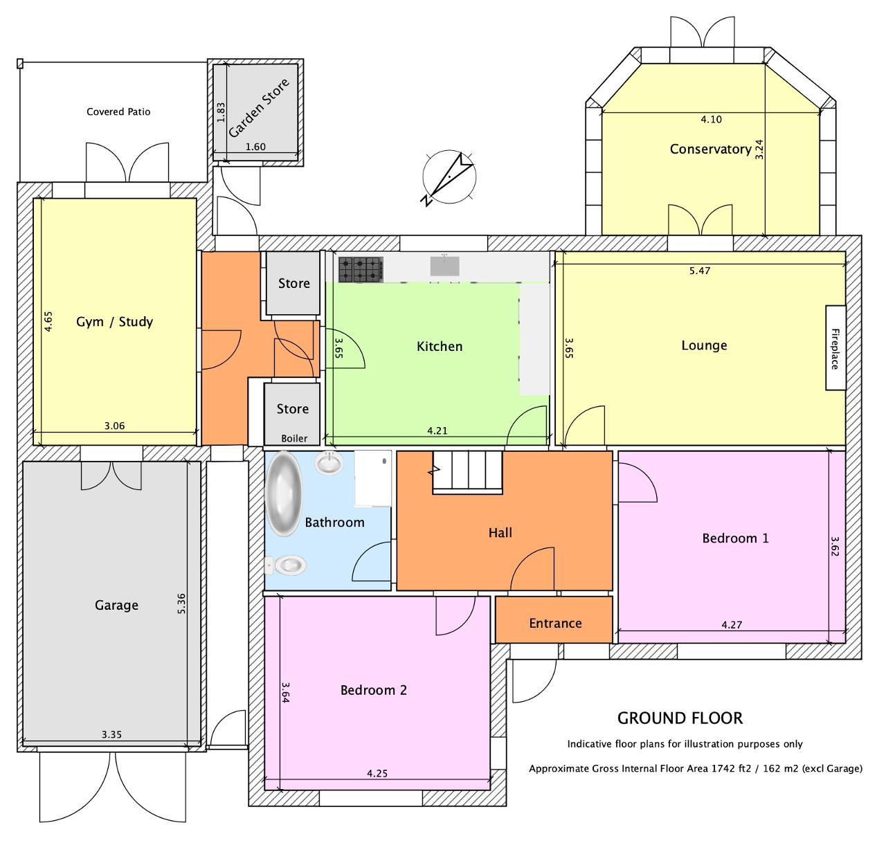
The property is approached via an attractive in-and-out driveway, providing ample parking and leading to a large garage. A welcoming porch opens into a central reception hall, from which all the principal ground floor rooms can be accessed.

To the front are two well-proportioned double bedrooms, thoughtfully positioned and ideal for guests or single-level living if required. The bathroom has been recently refitted in a fresh, contemporary style, serving the ground floor accommodation.

To the rear, the living space is particularly appealing. The lounge is centred around a wood-burning stove, creating a cosy focal point and an inviting atmosphere. Beyond this, a conservatory provides additional reception space overlooking the garden. The newly fitted kitchen also enjoys a garden outlook and has been carefully designed to combine practicality with style, making it a true hub of the home.

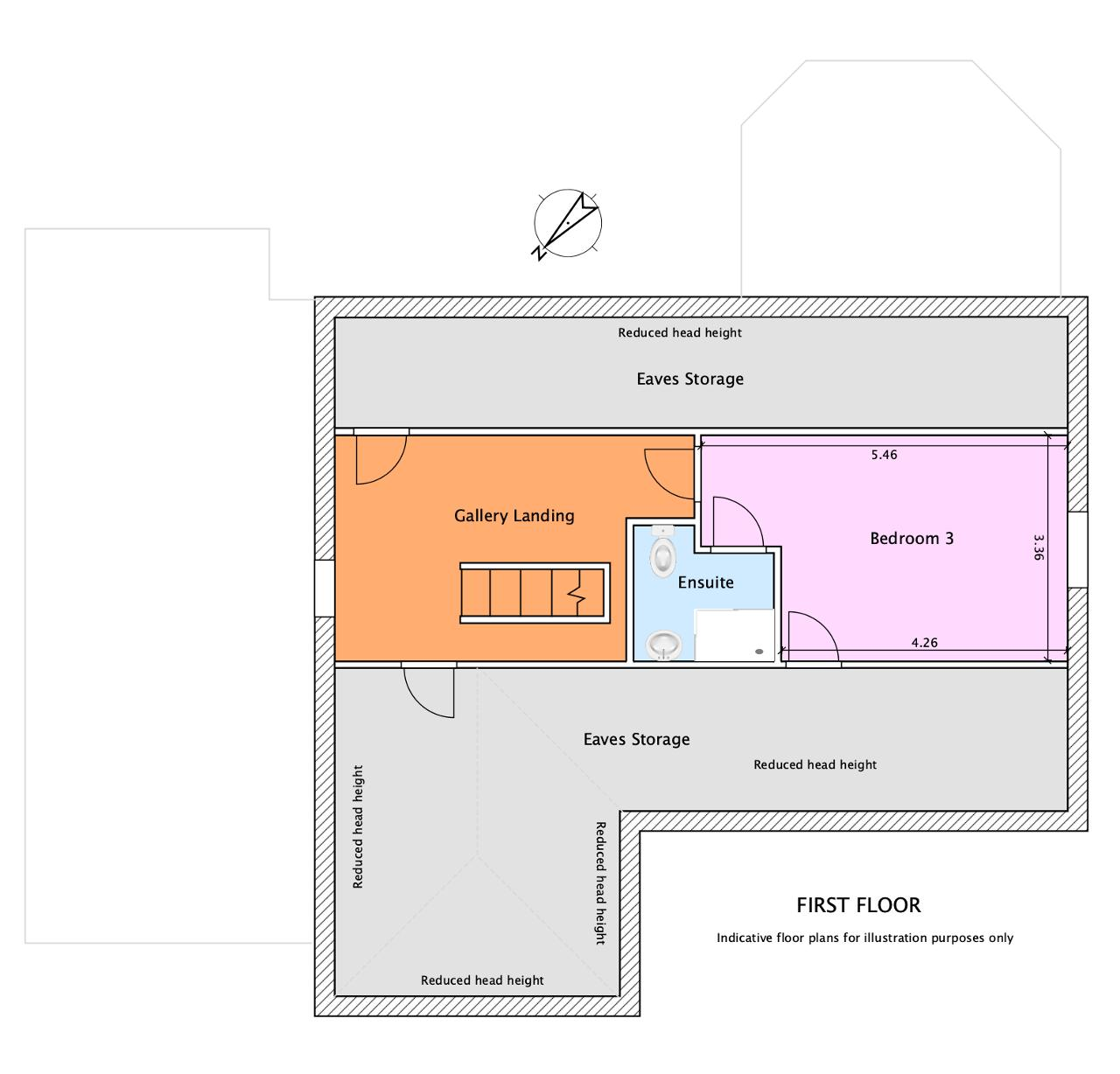
Upstairs, the landing provides a useful study area, perfect for home working or a quiet reading corner. Bedroom Three is a generous double with its own en-suite facilities. Off the landing there is also a walk-in loft storage area, offering excellent and easily accessible additional storage.

Externally, the property stands within a generous plot. The front garden is well sized, setting the bungalow back nicely from the road and enhancing its sense of space and privacy. To the rear, the garden is a good size and private, providing a pleasant outdoor setting to enjoy throughout the year.

Further benefits include air-conditioning for added comfort, a large garage, and an adjoining additional room currently used as a home gym, offering flexibility for a range of uses.

A property that offers comfortable living now, with the added advantage of future potential should you wish to explore redevelopment options.

Additional Information
We are informed by the vendor that the property is freehold and benefits from mains gas, electricity and drainage. Council Tax Band F with Stratford on Avon District Council. All information should be checked by your solicitor prior to exchange of contracts.

Additional Information

For further information on this property please call 01789417936 or e-mail [email protected]

EPC Graph

Interested in this property?

01789417936

[email protected]

Request a viewing

Share this property:

Rightmove OnthemarketPRSAir Ambulance BroadbandUK logo