3 Bedroom Detached Bungalow For Sale
Swanfold, Wilmcote, CV37 9XH
Offers Over £490,000
Sold STC
  • 3 Double Bedrooms
  • 3 Bathrooms
  • Flexible Accommodation
  • Pretty Rear Garden
  • Utility Room/Boot Room
  • 3 Reception Rooms
  • Conservatory
  • Driveway Parking
  • Village Location

Summary

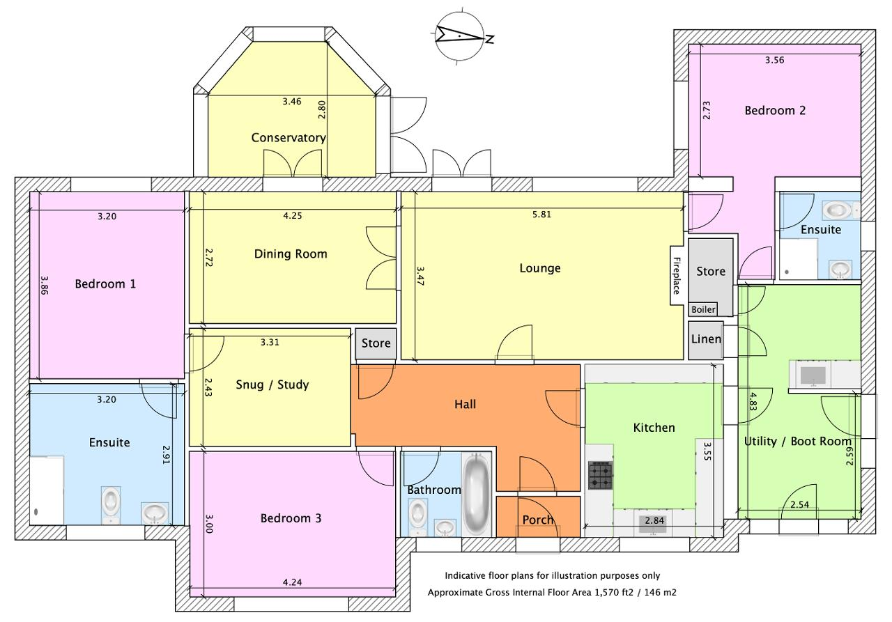
Situated in the sought-after village of Wilmcote, this immaculate three-bedroom detached bungalow offers spacious, flexible living with the added benefit of three bathrooms and beautifully maintained interiors throughout. Thoughtfully designed with versatility in mind, the layout allows one bedroom and shower room to be accessed independently - ideal for guests, multi-generational living, or those working from home.

Beautifully presented throughout, the property includes a welcoming hallway, a generous lounge with feature fireplace, a separate dining room, and a lovely conservatory opening onto the rear garden. A cosy snug/study adds another flexible space, perfect as a home office or reading room.

The bespoke, made-to-measure kitchen has plenty of storage and preparation space, and is complemented by a spacious utility/boot room with both internal and external access.

There are three double bedrooms in total. Bedrooms 1 and 2 both benefit from their own en suite facilities, while the third double bedroom is served by a smart family bathroom. Bedroom 2 can be accessed via a private side entrance and closed off from the main accommodation - offering superb privacy and flexibility.

Outside, the property features a well-tended rear garden with space to sit and relax, and a driveway providing off-road parking for three to four cars.

Wilmcote is a picturesque and historic village just a short drive from Stratford-upon-Avon. It's known for its links to Mary Arden's Farm, pub, church, shop, school, excellent local walks, and its own train station with direct services to Stratford and Birmingham - making it both peaceful and well connected.

Additional Information
We are informed by the vendor that the property is freehold and benefits from mains gas, electricity and drainage. Council Tax Band D with Stratford on Avon District Council. All information should be checked by your solicitor prior to exchange of contracts.

Additional Information

For further information on this property please call 01789417936 or e-mail [email protected]

EPC Graph

Interested in this property?

01789417936

[email protected]

Request a viewing

Share this property:

Rightmove OnthemarketPRSAir Ambulance BroadbandUK logo